“Whilst the Planning Committee strongly objected to the application, they wished to propose a number of mitigation measures in the event that the Local Planning Authority were minded to approve the application. Such points would be considered at the next meeting of the Planning Committee on 8th January 2025 and communicated to the Local Planning Authority thereafter.”
.
This week, the town council’s planning committee looked at the planning application for a new cycle path and housing for Sidbury – before it goes to the district council’s planning committee.
Here are the comments already on the district council’s planning website:
Of the consultee comments made so far, the DCC Flood Risk Management Team, the Sidmouth Rural – Cllr John Loudoun, the DCC Historic Environment Officer, the LPAE-Devon (Torbay+South Devon NHS Foundation Trust) Housing and the Housing Strategy/Enabling Officer – Cassandra Pressling either object or “right to re-assess and respond to this application”.
The Town Council objected to the proposals, as outlined in the minutes released today – and on several grounds:
The Committee were made aware of a number of representations on EDDC’s planning portal and several members of the public addressed the Committee.
OBJECT: Members objected to the planning application for the following reasons:
Impact on National Landscape: The proposed development would have a detrimental effect on the character and visual amenity of the designated National Landscape.
Inadequate Infrastructure: The existing infrastructure in Sidbury is not adequate to support an influx of residents and vehicles associated with 43 new residential dwellings, causing a strain on local amenities such as the school, parking facilities, and healthcare,
Drainage and Flooding Issues: The proposed development could exacerbate existing drainage issues in the area, increasing the current risk of flooding. The applicants have not demonstrated how this will be addressed.
Safety Concerns Due to Road Access: The proposed new access to the development would connect to a narrow road with poor visibility, creating significant safety risks for drivers, pedestrians, and cyclists. The road is already challenging for larger vehicles such as tractors and buses, and the increased traffic at the access point would worsen congestion and disruption and increase the risk of accidents.
Construction Disruption: The construction phase would likely cause significant upheaval, including noise, dust, and traffic disruption. Prolonged construction activities would negatively impact on the daily lives of existing residents and businesses in the area.
Environmental Considerations: The development could harm local natural habitats and biodiversity to the detriment of the National Landscape area.
Community Impact: The development would constitute overdevelopment of the village and disrupt the character and cohesion of the existing community
Listed Buildings: The development would have an adverse impact on nearby listed buildings and the views from Sidbury Castle Iron Age Hillfort.
With a proviso added:
NOTE: Whilst the Planning Committee strongly objected to the application, they wished to propose a number of mitigation measures in the event that the Local Planning Authority were minded to approve the application. Such points would be considered at the next meeting of the Planning Committee on 8th January 2025 and communicated to the Local Planning Authority thereafter.
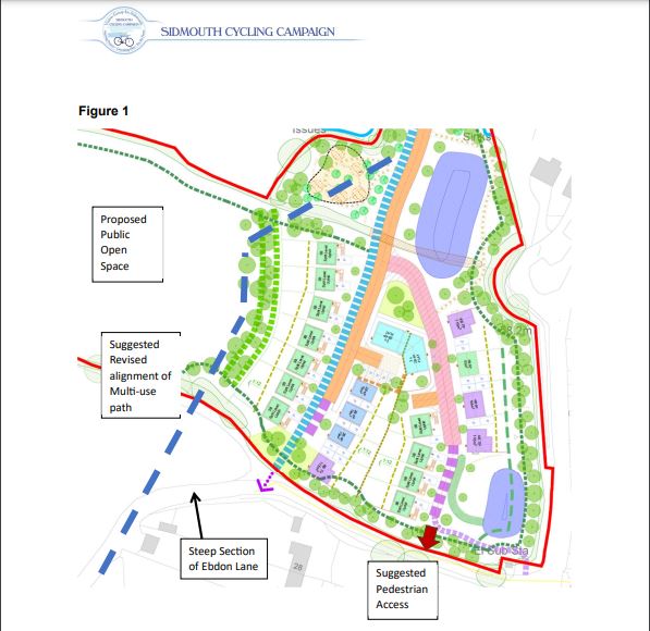
Similarly, the Sidmouth Cycling Campaign’s submission is very reasonable – welcoming the application but providing substantial comments, also in map form:

With the concluding comments looking to suggest further mitigating measures:
Conclusion: We welcome the proposal, within this planning application, to deliver the second phase of the proposed Devon County Council multi-use path from Sidford to Sidbury. If this application is approved, we would welcome the opportunity to comment on future applications for approval of reserved matters.
All of this will be looked at again at the Planning Working Group (8 Jan 2025) – Sidmouth Town Council. And possibly at the Planning Committee on Tuesday, 28th January, 2025, 10.00 am – East Devon.
…